fr

Votre recherche

Vendu
Strasbourg (67000)

4 pièces - 79,42 m²

 VENDU ! Strasbourg, quartier des Quinze - 4 pièces 80m2 avec terrasse et parking

Ref : C00633
A propos de ce bien

VENDU !

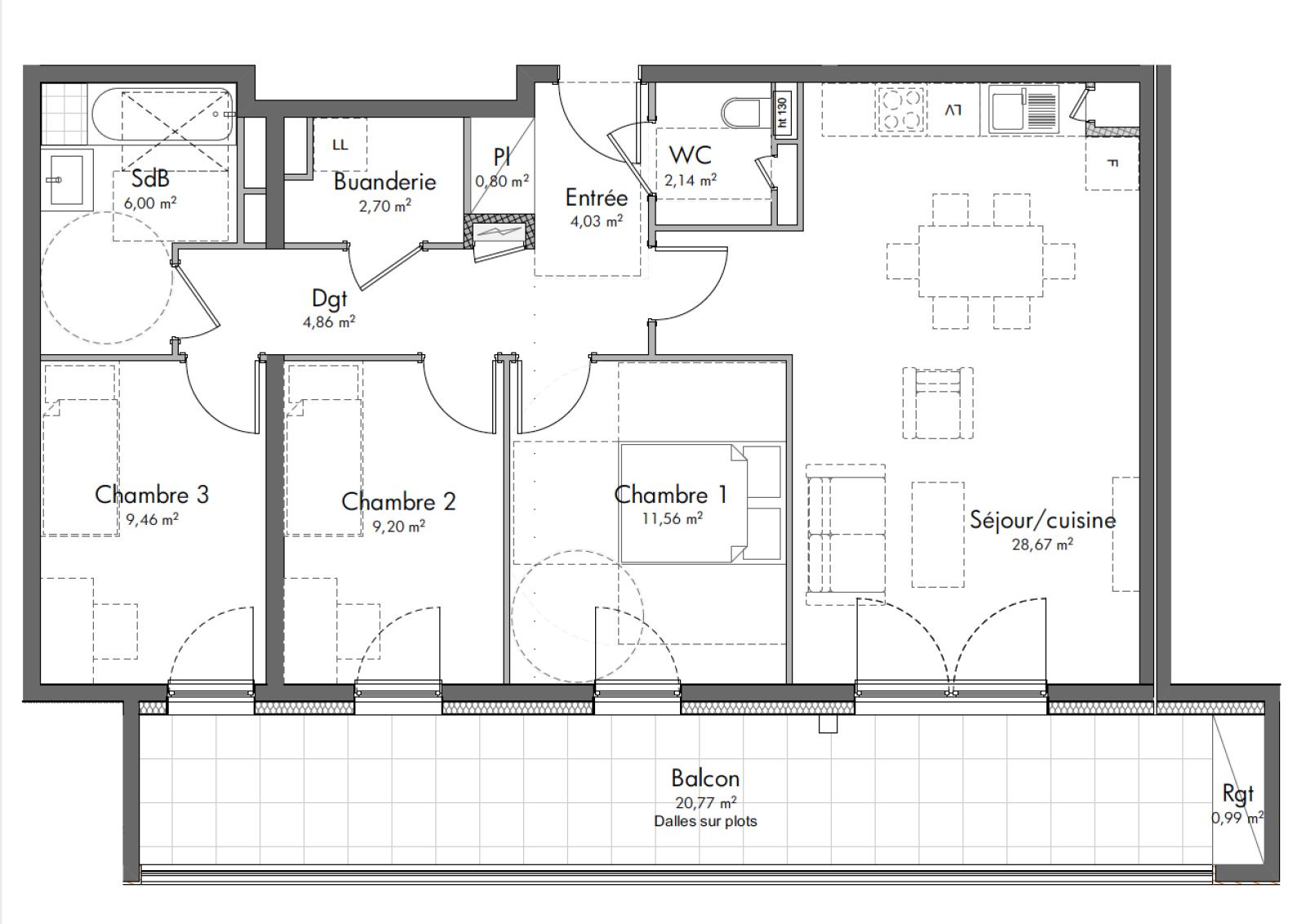
Dernière opportunité ! Strasbourg, quartier des Quinze - dans immeuble neuf, RT 2012, appartement 4 pièces de 79,42m2 lumineux au 2ème étage étage avec ascenceur, exposé ouest, comprenant un salon avec cuisine de 29m2 donnant sur une grande terrasse avec placard de 22m2 avec vue sur les jardins de la résidence, trois chambres de respectivement 11,5m2, 10m2 et 9m2 environ, une salle de bain avec double vasque et baignoire, une buanderie, un placard dans l'entrée et un WC séparé.

Possibilité d'achat en sus du prix de vente d'un cellier et d'un garage en sous-sol au prix de 18000€.

Frais de notaire réduits à 2,5% au lieu de 8%. Exonération de la taxe foncière pendant 2 ans. Eligible dispositif Pinel. Tarif direct promotteur, pas de frais d'agence supplémentaire.

Pour plus de renseignements, contactez Valérie au 06.51.76.78.92.

Descriptif de ce bien
Général
Code postal 67000
Surface loi Carrez (m²) 79,42 m²
Nombre de chambre(s) 3
Nombre de pièces 4
Etage 2
Nombre de niveaux 1
Détails
Nb de salle de bains 1
Nb de salle d'eau 1
Cuisine Américaine
Balcon NON
Terrasse OUI
Nombre de garage 1
Cave NON
Exposition Ouest
Année de construction 2021
Energie
DPE GES
Autour du bien
  • Commerces et santé
  • Loisirs
  • Ecoles
  • Transports
  • Pratique
Contacter pour ce bien
L'agence
Téléphone 06 51 76 78 92
Adresse
32 Allee de la Robertsau 67000 Strasbourg

* Champ obligatoire

Les informations recueillies sur ce formulaire sont enregistrées dans un fichier informatisé par La Boite Immo agissant comme Sous-traitant du traitement pour la gestion de la clientèle/prospects de l'Agence / du Réseau qui reste Responsable du Traitement de vos Données personnelles. La base légale du traitement repose sur l'intérêt légitime de l'Agence / du Réseau. Elles sont conservées jusqu'à demande de suppression et sont destinées à l'Agence / au Réseau. Conformément à la loi « informatique et libertés », vous disposez des droits d’accès, de rectification, d’effacement, d’opposition, de limitation et de portabilité de vos données. Vous pouvez retirer votre consentement à tout moment en contactant directement l’Agence / Le Réseau. Consultez le site https://cnil.fr/fr pour plus d’informations sur vos droits. Si vous estimez, après avoir contacté l'Agence / le Réseau, que vos droits « Informatique et Libertés » ne sont pas respectés, vous pouvez adresser une réclamation à la CNIL. Nous vous informons de l’existence de la liste d'opposition au démarchage téléphonique « Bloctel », sur laquelle vous pouvez vous inscrire ici : https://www.bloctel.gouv.fr Dans le cadre de la protection des Données personnelles, nous vous invitons à ne pas inscrire de Données sensibles dans le champ de saisie libre.
Ce site est protégé par reCAPTCHA, les Politiques de Confidentialité et les Conditions d'Utilisation de Google s'appliquent.

Découvrir nos outils