fr

Votre recherche

Mittelhausbergen (67206)

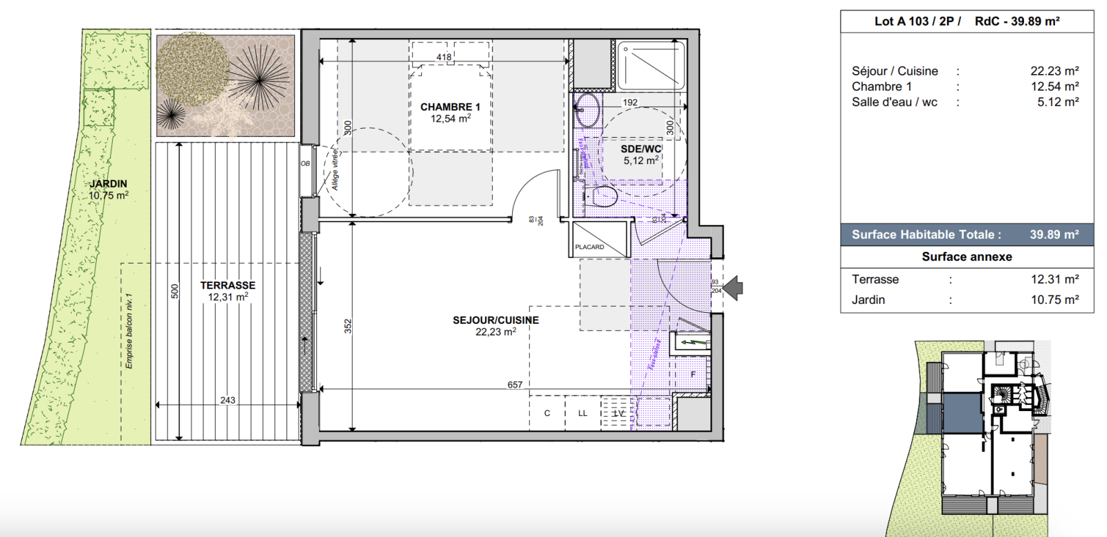
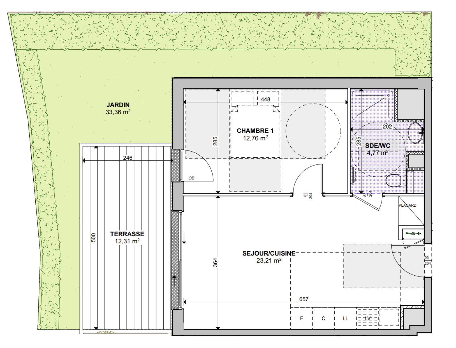
2 pièces - 40,74 m²

URGENT ! Mittelhausbergen - Appartement 2 Pièces en rez-de-jardin

218 000 €
Ref : C000189
A propos de ce bien

Urgent ! FRAIS DE NOTAIRE OFFERTS et 3000€ / PIECES OFFERTS !!!

Retour à la vente ! A saisir rapidement ! Mittelhausbergen, au coeur du village, proche des commodités et des axes routiers, dans nouvelle résidence joliment arborée, très bel appartement 2 pièces de 40,74m2 en rez-de-jardin de 45,67m2, exposé Ouest. Il se compose d'un beau séjour avec cuisine ouverte de plus de 23m2 ainsi qu'une chambre de presque 13m2 donnant tous deux sur la terrasse et le jardin, une salle d'eau avec douche et WC, un placard dans le hall.

Possibilité d'achat d'un garage fermé en sous-sol en sus du prix de vente à 16000€.

Pour toutes informations complémentaires et pour un rendez-vous, contactez Valérie au 06.51.76.78.92.

Exonération de la taxe foncière pendant 2 ans. Tarif direct promotteur, pas de frais d'agence supplémentaire.

Les informations sur les risques auxquels ce bien est exposé sont disponibles sur le site Géorisques : georisques.gouv.fr

Descriptif de ce bien
Général
Code postal 67206
Surface loi Carrez (m²) 40,74 m²
Nombre de chambre(s) 1
Nombre de pièces 2
Nombre de niveaux 1
Ascenseur OUI
Détails
Nb de salle d'eau 1
Cuisine Américaine
Mode de chauffage Pompe à chaleur
Type de chauffage Au sol
Format de chauffage Collectif
Exposition Ouest
Année de construction 2025
Financier
Prix de vente honoraires TTC inclus 218 000 €
Energie
DPE GES
Autour du bien
  • Commerces et santé
  • Loisirs
  • Ecoles
  • Transports
  • Pratique
Contacter pour ce bien
L'agence
Téléphone 06 51 76 78 92
Adresse
32 Allee de la Robertsau 67000 Strasbourg

* Champ obligatoire

Les informations recueillies sur ce formulaire sont enregistrées dans un fichier informatisé par La Boite Immo agissant comme Sous-traitant du traitement pour la gestion de la clientèle/prospects de l'Agence / du Réseau qui reste Responsable du Traitement de vos Données personnelles. La base légale du traitement repose sur l'intérêt légitime de l'Agence / du Réseau. Elles sont conservées jusqu'à demande de suppression et sont destinées à l'Agence / au Réseau. Conformément à la loi « informatique et libertés », vous disposez des droits d’accès, de rectification, d’effacement, d’opposition, de limitation et de portabilité de vos données. Vous pouvez retirer votre consentement à tout moment en contactant directement l’Agence / Le Réseau. Consultez le site https://cnil.fr/fr pour plus d’informations sur vos droits. Si vous estimez, après avoir contacté l'Agence / le Réseau, que vos droits « Informatique et Libertés » ne sont pas respectés, vous pouvez adresser une réclamation à la CNIL. Nous vous informons de l’existence de la liste d'opposition au démarchage téléphonique « Bloctel », sur laquelle vous pouvez vous inscrire ici : https://www.bloctel.gouv.fr Dans le cadre de la protection des Données personnelles, nous vous invitons à ne pas inscrire de Données sensibles dans le champ de saisie libre.
Ce site est protégé par reCAPTCHA, les Politiques de Confidentialité et les Conditions d'Utilisation de Google s'appliquent.

Découvrir nos outils